中置式高壓柜的結構布置圖你都看懂了嗎?
發布日期:2019-07-25

掃一掃
來源:
瀏覽次數:290
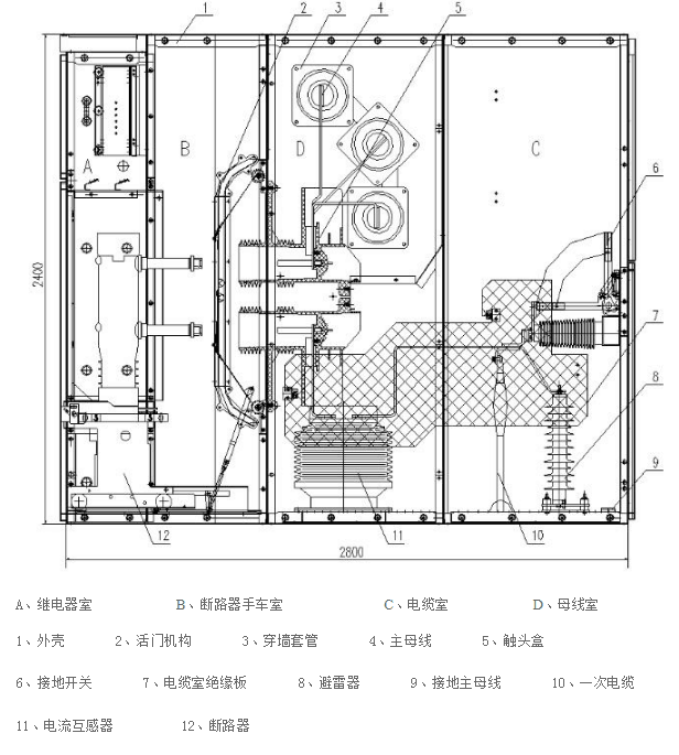
中置式高壓柜是用于接受和分配電能并對電路實行控制、保護及監測。中置式高壓柜一般由四個隔室組成的,分別為繼電器室、斷路器手車室、電纜室、母線室。那么對于不同的中置式高壓柜的結構布置圖都能完全了解嗎?今天得潤電氣小編就一一給大家詳細了解一下。
繼電器室:繼電器儀表室可安裝繼電保護元件、儀表、帶電監察指示器,以及特殊要求的二次設備。
斷路器手車室:抽出式斷路器移開后,斷路器隔室內的靜觸頭被活門遮蔽,斷路器隔室被保護。 在斷路器室內,打開金屬活門檢查靜觸頭。
母線室:主母線、分支母線、螺栓等組成,墊塊母線與支母線的聯接型式。
電纜室:電纜室空間較大,必要時每相可并接6根單芯電纜。
以下是10KV、20KV、35KV高壓柜的結構圖布置圖
10KV高壓柜
20KV高壓柜
35KV高壓柜
以上就是今天分享的中置式高壓柜知識,覺得文章寫的不錯的朋友,可以分享給身邊需要的朋友!