為什么業主喜歡ABB授權的MNS2.0抽屜柜

MNS2.0型低壓抽出式開關柜
一.概述
MNS2.0型低壓抽出式開關柜(以下稱開關柜)是我公司采用了瑞士ABB公司得MNS系列低壓開關柜技術并加以綜合改進后開發的,是目前國內較先進的低壓抽出式開關設備。該產品均由標準化的、成系列的模塊組成,并且抽屜具有可靠的機械聯鎖裝置,使用戶在使用時更安全、更可靠。
本開關柜適用于交流50(60)HZ、額定絕緣電壓和工作電壓為380(400)V、660v、額定電流6300A及以下三相五線制的電力供電系統,可用于發電廠、變電所、工礦企業、大樓賓館、機場、碼頭以及廣播電視等通信中心,作為發電、輸配電、電能轉換及對電能消耗設備的控制,并通過電容補償對其主母線進行無功補償。
二.先進的MNS2.0的最新特點
1.上通風門、電纜室門和后門,轉動部分由暗鉸鏈改為明鉸鏈,這使得門轉動平穩,轉動角度更大,同時也比以前要美觀,整體效果更加協調。
2.改進前,一次轉接件與塑料功能件直接相連。假如發生特殊故障,導致一次轉件燒毀,這樣會給現場的維修帶來較大的困難,更換時間較長。而改進后,由于一次轉件改為獨立安裝維修方便,減少了停電時間,經濟效果顯著。
3.MCC柜的一次電纜出線方便更加靈活。相比以前,除了保留原有的側出和后出的方案,更增加了同時側出和后出的混合方案,極大的方便了用戶。
4.8E、16E和24E單元抽屜內的一次電聯的規格可以根據回路的實際電流大小選擇電纜,這有利于用戶現場的維修和更改。
5.改進后,后出線方案的后門結構與以前相比,對中立柱進行了重新優化,從而增加了出線電纜的空間,便于用戶維修。
6.改進后,后出線方案的二次接插件由側面位置改到后隔板位置。這樣,不但減少了二次電纜到端子的距離,而且避免了因現場柜子并柜后無法維修的問題。(600mm寬后出線方案容易產生)。
7.可翻門式頂蓋,安裝方便,省力省時。
三.使用條件
1.周圍空氣溫度不高于+40℃,不低于-5℃,而且24h內其平均溫度不高于+35℃。
2.周圍空氣相對于濕度在最高溫度為+40℃時不超過50%,在較低溫度時有較大的相對濕度,如+20℃時為90%,但考慮到由于溫度的變化有可能會偶然產生適度的凝露。
3.戶內使用時,使用地點的海拔高度不超過2000m。
4.應安裝在無劇烈震動和沖擊,以及不使電器元件受到腐蝕的場所。
四.使用條件
標準及技術規范 | GB7251.11997(IEC60439-1:1999,IDT)低壓成套開關設備和控制設備(TTA) |
JB/T9661-1999低壓抽出式開關成套設備 | |
過電壓類別 | IV III |
污染等級 | 3 |
額定工作電壓(Ue)(v) | 380(660) |
額定絕緣電壓(Ui)(V) | 660(1000) |
額定頻率(HZ) | 50(60) |
水平母線 | 銅母線 |
額定電流 | 6300A 5000A 4000A 3150A 2500A 2000A 630A |
額定峰值耐受電流(lpk)( kA) | 105,140,176.(0.1s 最大值) |
額定短時耐受電流(lcw)(kA) | 50,65,80 (1s 有效值) |
MNS2.0型低壓抽出式開關柜
垂直母線 | 銅母線 |
額定最大工作電流 | ≤1250A |
額定短時耐受電流 | 50kA |
額定峰值耐受電流 | 105kA |
外殼防護等級 | lP30 1P40 (特殊說明) |
五.結構特征
本開關柜由于引進了瑞士ABB先進技術,并在其原有的基礎上加以技術改進,使其更加符合我國國情。柜體采用25mm為模數的C型材通過連接件來組成各種得以滿足各種需求的柜架結構和抽屜單元,在MCC柜中大量采用高強度的阻燃型工程塑料組件,使其安全性更可靠,同時加之國外的功能板加以改造,以200mm為模數加以組合,使其更利于PC柜與MCC柜混裝柜體的設計需求,抽出單元與柜體具有可靠的連鎖裝置,以防止在開關通電狀態下的帶負荷拉閘,提高了其安全性,另外該柜體一般采用冷軋鋼板進行處理后組裝而成,也可以根據用戶的不同需求采用敷鋁鋅鋼板。
1.開關柜類型
a. 受電、母聯柜
b. 動力中心柜(PC)
采用國內外的各種類型的框架式斷路器如CDW7、CDM7(德力西產品)E、MT系列斷路器進行配電。
c. 電動機控制中心柜(MCC)
由大小抽屜組裝而成,各回路主開關采用高分斷能力的塑殼斷路器或旋轉式帶熔斷器的負荷開關。
d. 無功功率補償柜
2.抽屜類型
有五種尺寸都是以8E(200mm)高度,進行模塊化結構設計,其有效元器件安裝高度為1800mm,使柜體整體布局更加合理,更美觀。
抽屜型式 | 8E/4 | 8E/2 | 8E | 16E | 24E |
最多容納單元數 | 36 | 18 | 9 | 4+8E | 3 |
2.柜體簡介
3.1柜體基本尺寸
a. 受電柜及聯絡柜
主母線轉接柜 | 1臺斷路器 | |
高(mm) | 2200 | 2200 |
寬(mm) | 400 | 600 800 1000 |
深(mm) | 800 1000 | 800 1000 |
備注 | 4000A及以下斷路器 |
b. 動力中心(PC)柜
2臺斷路器 | 3臺斷路器 | |
高(mm) | 2200 | 2200 |
寬(mm) | 800 1000 | 800 1000 |
深(mm) | 800 1000 | 800 1000 |
備注 | 3200A及以下斷路器 |
c. 電機控制中心(MCC)柜及電容補償柜
MCC柜MCC cabinet | 電容補償柜Compensate cabinet | |||
高Height(mm) | 2200 | 2200 | ||
寬Width(mm) | 600 | 800 | 1000 | 800 1000 |
深Depth(mm) | 1000 800 | 1000, 800 | 1000, 800,600 | 800, 1000 |
3.2柜體分區設計
MCC柜根據需要可組成單面操作柜或雙面操作柜,每一個柜體又固定分隔成三個小室。即主母線室、電器室和電纜室。(具體見圖二)
3.3安全保護系統
每柜設有一塊阻燃型的高密度聚氨脂塑料功能版,或經過電鍍的隔板安裝在主母線室與電器室之間,其作用為有效防止開關元件因故障引進的飛弧與母線之間短路造成的事故。使操作更安全。
上下層抽屜之間都有帶通風孔的鍍鋅金屬板相隔離,較小的8E/4、8E/2抽屜其四周均為阻燃型工程塑料件,對相鄰回路之間具有較強的絕緣隔離作用。
柜內采用了多種塑料組件及支撐帶電部分,這些組件要求是無鹵素的,并具有CTI300等級的防漏電性能。
柜內設有獨立的PE接地系統和N中性導體,二者貫穿整個裝置,安裝在柜前底部右側,各回路接地或接零都可就近聯接。整個母線系統安裝見圖三所示。框架結構件采用自攻螺釘聯接,具有較高的接地可靠性。(具體見圖三)
3.4母線系統
開關柜可配置二組主母線,安裝在開關柜的后部母線室。二組母線可分別安裝在柜后上部或下部。根據進線需要,上下二組母線可分別采用不同或相同截面的材料。二者可單獨供電,也可并聯供電,也可用作后備電源。
配電母線(垂直母線)組裝在阻燃型塑料功能板中,即可防止電弧引起的放電,又能防止人體接觸,通過特殊聯接件與主母線聯接。
圖三MNS2.0
3.5抽屜的電氣和機械聯鎖
抽屜單元有可靠的機械聯鎖裝置,通過操作手柄控制,有明顯的準備、合閘、試驗、抽出和隔離位置。
為加強安全防范,操作手柄定位后可加上掛鎖,最多加三把鎖。
六.電路元件選擇
裝置內元件主要選用技術性能指標先進或采用引進技術國內已能批量生產的電器元件。
a.主斷路器630A及以上的電源進線及饋電回路,主選E系列,也可以用CDW1系列、AE系列、CW1系列或RMW1系列,認為有必要時,也可選用MT系列或IZM系列等。
b.630A以下的饋線和電動機控制用斷路器,主要選用T系列,也可選用CDM1系列、CM1系列、TM30系列、NZM系列,認為有必要時也可選用NS系列或其它等塑殼斷路器。
c.交流接觸器主要選用A系列、CDC7系列、LCI系列的接觸器,以及與之配套的熱繼電器,聯鎖機構。
d.電流互感器選用ALH系列、BH系列,SDH系列。
e.熔斷器選用的分析能力的Q系列或NTOO系列。
f.以下是部分元件的主要性能參數。
七.E系列框架斷路器
主要技術參數
斷路器 | E1 | E2 | E3 | E4 | E6 | |||||||||||
極數 | 3P 4P | 3P 4P | 3P 4P | 3P 4P | 3P 4P | |||||||||||
額定電流(A) | 800 1000、1250、1600 | 1600、2000 | 2500、3200 | 3200、4000 | 5000 、6300 | |||||||||||
額定頻率(Hz) | 50(60) | 50(60) | 50(60) | 50(60) | 50(60) | |||||||||||
額定電壓(V) | 400、690 | 400、690 | 400、690 | 400、690 | 400、690 | |||||||||||
額定絕緣電壓(V) | 1000 | 1000 | 1000 | 1000 | 1000 | |||||||||||
額定沖擊耐受電壓(KV) | 12 | 12 | 12 | 12 | 12 | |||||||||||
額定運行短路分斷能力(KA) | N | S | N | S | L | S | H | L | S | H | V | H | V | |||
50 | 65 | 65 | 85 | 130 | 75 | 85 | 130 | 75 | 100 | 150 | 100 | 125 | ||||
額定極限短路分斷能力(KA) | 50 | 65 | 65 | 85 | 130 | 75 | 100 | 130 | 75 | 100 | 150 | 100 | 150 | |||
額定短路接通能力(KA) | 105 | 143 | 143 | 187 | 286 | 165 | 220 | 286 | 165 | 220 | 330 | 220 | 330 | |||
額定短時耐受電流(lS)(KA) | 50 | 65 | 55 | 65 | 10 | 75 | 75 | 15 | 75 | 100 | 100 | 100 | 100 | |||
每小時操作次數(times) | 30 | 30 | 30 | 30 | 20 | 20 | 20 | 20 | 10 | 10 | 10 | 10 | 10 | |||
機械壽命e(1000 times) | 詳見ABB Emax 使用說明書 | |||||||||||||||
電氣壽命(times) | ||||||||||||||||
全分斷時間I<Icw(ms) | 70 | 70 | 70 | 70 | 70 | 70 | 70 | 70 | 70 | 70 | 70 | 70 | 70 | |||
全分斷時間 I>Icw(ms) | 30 | 30 | 30 | 30 | 12 | 30 | 30 | 12 | 30 | 30 | 30 | 30 | 30 | |||
合閘時間(ms) | 80 | 80 | 80 | 80 | 80 | 80 | 80 | 80 | 80 | 80 | 80 | 80 | 80 | |||
外形尺寸固定式 H=418mm,D=302mm 3P/4P(mm) | 296/386 | 296/386 | 404/530 | 566/656 | 782/908 | |||||||||||
外形尺寸抽出式 H=461mm,D=396mm 3P/4P(mm) | 324/414 | 324/414 | 432/558 | 594/684 | 810/936 | |||||||||||
固定式重量 3P/4P(kg) | 45/54 | 50/61 | 66/80 | 97/117 | 140/160 | |||||||||||
手車式重量3P/4P(kg) | 70/82 | 78/93 | 104/125 | 147/190 | 210/260 |
* 1:數據為系統電壓400V時數據
九. A系列交流接觸器
主要技術參數
參數 | ||||||||||||
電動機額定功率 AC-3 400V (KW) | 4 | 5.5 | 7.5 | 15 | 18.5 | 22 | 30 | 37 | 45 | 55 | ||
型號 | A9 | A12 | A16 | A30 | A40 | A50 | A63 | A75 | A95 | A110 | ||
額定電流(le) | 400V | AC-3 | 9 | 12 | 17 | 32 | 37 | 50 | 65 | 75 | 96 | 110 |
690V | AC-3 | 7 | 9 | 10 | 21 | 25 | 35 | 43 | 46 | 65 | 82 | |
額定工作電壓 (Ue) V | 400 、690 | |||||||||||
操作電壓e(V) | AC24、48、110、220、380 |
參數 | |||||||||||||
電動機額定功率AC-3 400V (KW) | 75 | 90 | 110 | 140 | 160 | 200 | 250 | 315 | 400 | 475 | |||
型號 | A145 | A185 | A210 | 260 | A300 | AF400 | AF460 | AF580 | AF750 | AF1350 | |||
額定電流(le) | 400V | AC-3 | 145 | 185 | 210 | 260 | 305 | 400 | 460 | 580 | 750 | 860 | |
690V | AC-3 | 120 | 170 | 210 | 220 | 280 | 370 | 400 | 550 | 700 | 860 | ||
額定工作電壓 (Ue) V | 400 、690 | ||||||||||||
操作電壓(V) | AC24、48、110、220、380 | AC24、48、110、220、380;DC20~60、 48~130、100~250 Etc. |
注:其它控制電壓請與我們聯系。
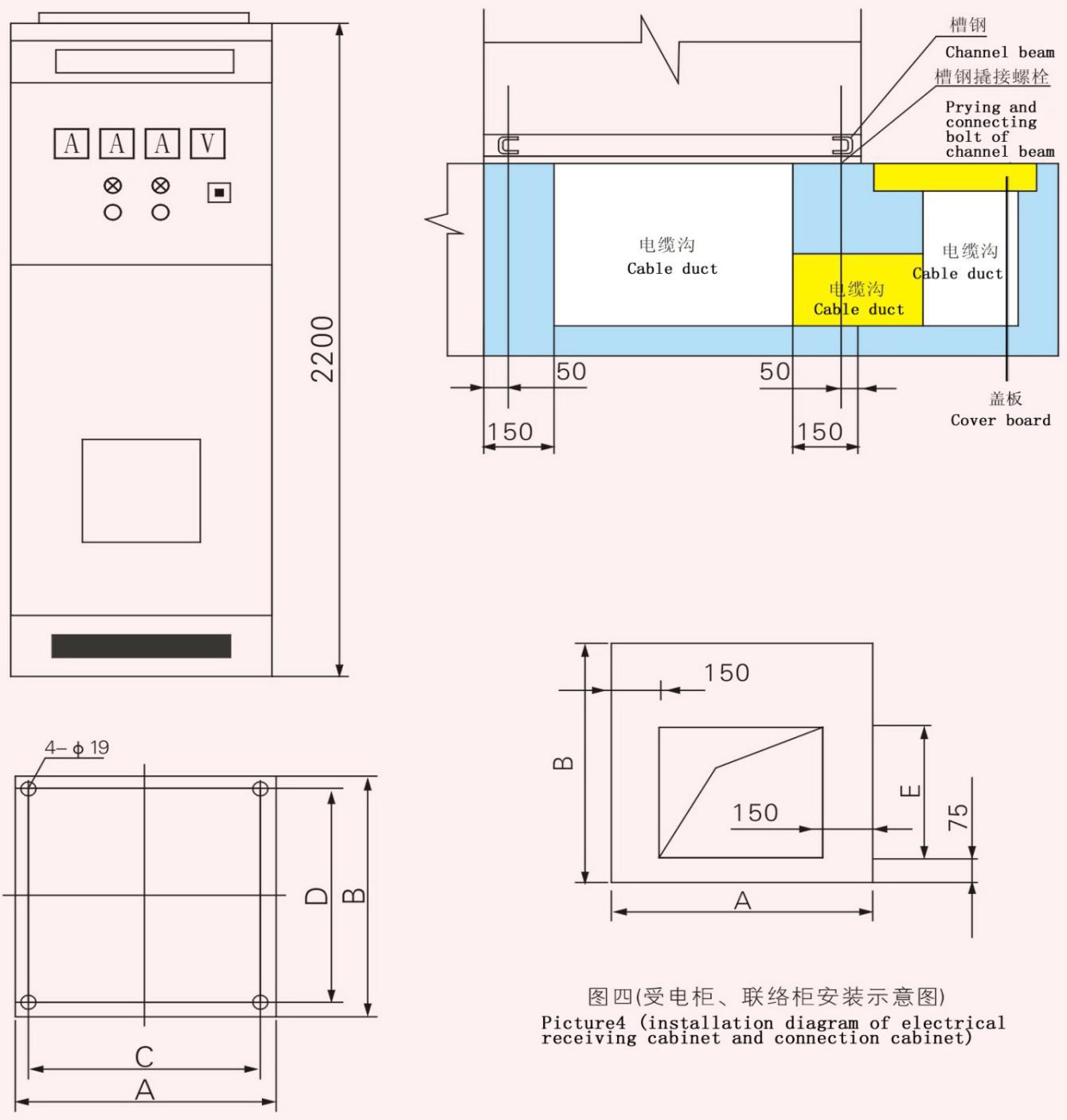
十一. MNS2.0開關柜的安裝示意圖
受電柜、聯絡柜安裝示意圖(具體見圖四)
A | B | C | D | E | ||
各種柜體的組合類型 | 600 | 800 | 500 | 700 | 500 | 受電 |
800 | 800 | 700 | 700 | 500 | 受電、聯絡 | |
1000 | 800 | 900 | 700 | 500 | 受電、聯絡 | |
600 | 1000 | 500 | 900 | 500 | 受電 | |
800 | 1000 | 700 | 900 | 500 | 受電、聯絡 | |
1000 | 1000 | 900 | 900 | 500 | 受電、聯絡 |
PC柜安裝示意圖(具體見圖五)
A | B | C | D | E | ||
各種柜體的組合類型 | 600 | 800 | 500 | 700 | 300 | PC |
800 | 800 | 700 | 700 | 500 | PC | |
600 | 1000 | 500 | 900 | 300 | PC | |
800 | 1000 | 700 | 900 | 500 | PC |
MCC柜安裝示意圖(具體見圖六)
A | B | C | D | E | ||
各種柜體的組合類型
| 600 | 800 | 500 | 700 | 400 | MCC |
800 | 800 | 700 | 700 | 400 | MCC | |
600 | 1000 | 500 | 900 | 400 | MCC | |
800 | 1000 | 700 | 900 | 400 | MCC |
十二. 訂貨須知
1.提供主接線方案圖、編號,用途;額定電壓;額定電流;配電室平面布置圖及開關柜的排列配置圖,并標明每一回路模數;
2.標明進出線電纜規格;
3.開關柜內主要元件的型號、規格及數量;
4.如開關柜之間或進線柜需要母線橋或母線槽連接,應提供母線橋或母線槽的額定載流量,母線橋或母線槽的跨度,距地面高度等具體要求數據。詳見母線橋或母線槽的訂貨須知;
5.開關柜使用在特殊環境條件時,應在訂貨時詳細說明;
6.顏色:根據用戶需求;
7.單元回路電流大于400A以上,建議改為固定安裝;
8.其他具體要求。