概述一下35kv鎧裝開關柜的具體參數

KYN61-40.5 型鎧裝移開式交流金屬封閉型開關設備
1. 概述
KYN61-40.5鎧裝移開式交流金屬封閉開關設備 (以下簡稱開關設備) 是安徽得潤電氣技術有限公司開發的產品,額定電壓及頻率分別為40.5KV,50(60Hz)。主要用于工廠和電力系統中接受和分配電能并對電路實行控制、保護和監測。其主要特點是能配真空斷路器或SF6斷路器,柜體采用組裝結構,提高了產品品質和配合精度。
符合標準
GB3906-2006 《3~35kV交流金屬封閉開關設備》
GB11022-89 《高壓開關設備通用技術條件》
IEC62271-200(2003)《額定電壓1 kV以上52kV及以下交流金屬封閉開關設備和控制設備》
2.型號及含義
3.使用環境條件
1、環境溫度:最高溫度+40℃,最低溫度-10℃;
2、環境濕度:日平均相對濕度≤95%,月平均相對濕度在≤90%;
3、海拔高度:1000m以下;
4、抗地震度:地震烈度不超過8度;
5、周圍空氣應不含腐蝕性或可燃氣體、水蒸氣等明顯污染;
6. 無嚴重污穢及經常性的劇烈振動,嚴酷條件下嚴酷度設計滿足1類要求。
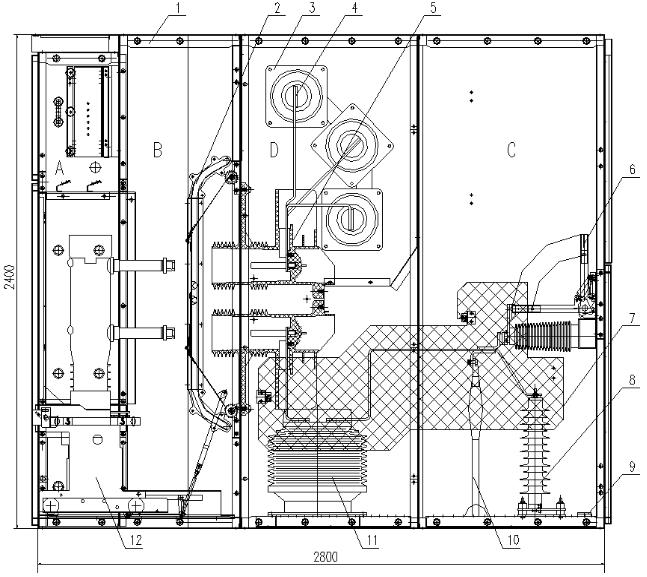
5.結構特征
(見圖1、圖2)
A、繼電器室 B、斷路器手車室 C、電纜室 D、母線室
1、外殼 2、絕緣子 3、穿墻套管 4、母線室絕緣板 5、主母線
6、觸頭盒 7、接地開關 8、電纜室絕緣板 9、避雷器 10、接地主母線
11、一次電纜 12、電流互感器 13、斷路器
圖1 開關柜結構圖(配ZN85-40.5斷路器)
A、繼電器室 B、斷路器手車室 C、電纜室 D、母線室
1、外殼 2、活門機構 3、穿墻套管 4、主母線 5、觸頭盒
6、接地開關 7、電纜室絕緣板 8、避雷器 9、接地主母線 10、一次電纜
11、電流互感器 12、斷路器
圖2 開關柜結構圖(配VD4-40.5斷路器)
6. 開關設備安裝
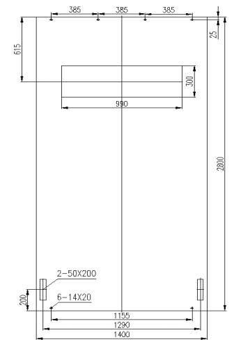
1.開關設備的安裝基礎尺寸與安裝尺寸(見圖3、4)
圖3
開關設備地基安裝圖 開關設備安裝示意圖
(配ZN85-40.5 安裝基礎圖及底板孔尺寸)
8.訂貨須知
KYN61-40.5開關柜訂貨時應提供下列技術資料:
1.主接線方案圖編號、用途和單線系統圖、額定電壓、額定電流,額定短路開斷電流、配電室平面布置圖及開關柜的排列配置圖等;
2.開關柜控制、測量及保護功能的要求以及其它閉鎖和自動裝置的要求及原理圖;
3.開關柜內主要電氣元件的型號,規格及數量。